P000199179
Ref: P000199179
€21,170 Yearly
Overview
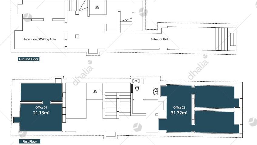
Malta’s first boutique business centre located in the heart of Valletta. This spectacular 16th century palazzo has been re-adapted to suit the requirements of today’s fact paced and every changing business needs. Office spaces available as entire floors and there’s also the option of rooms being rented under serviced agreement. This specific first floor measures 58 square metres but it may also be rented as two separate offices, one measuring 22 square metres and the other 36 square metres.Features
- Payment type Yearly
- Type Office
- Town Valletta
- Province Malta
- Country Malta
- Built surface 58
- Plot 58
- Car park 1
- Tgroup C





